Project Overview

444 Skinner Boulevard represents the perfect blend of modern luxury and Florida coastal living. These thoughtfully designed townhomes offer sophisticated urban living in the heart of Dunedin, featuring Modern Mediterranean architecture, premium materials, and spacious layouts designed for modern families.

Floor Plans

Each townhome spans three stories with carefully planned layouts that maximize space, natural light, and privacy. Every level offers distinct living areas designed for comfort and functionality.

Garage Floor

Garage Floor

🔍 Click to Expand

  • Two car spaces
  • Storage lockers
  • Utility closet
  • Entry foyer
  • Bike storage
  • Golf cart space

Living & Kitchen

Second Floor Plan

🔍 Click to Expand

  • Open concept living & dining
  • Modern kitchen with island
  • 8ft Nanawall
  • Guest Suite with WIC
  • Laundry room

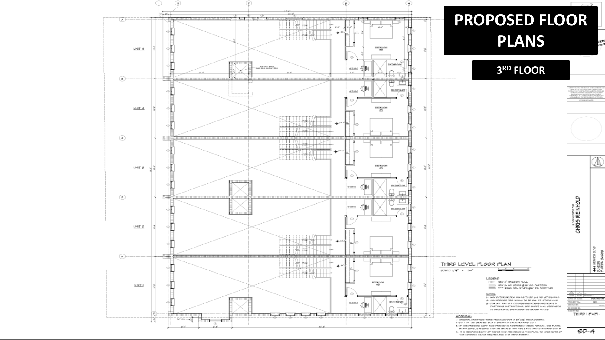
Sky Suite

Third Floor Plan

🔍 Click to Expand

  • Large 3rd Bedroom
  • Office/Studio space
  • Storage areas
  • On Suite Bathroom
  • Custom Closet

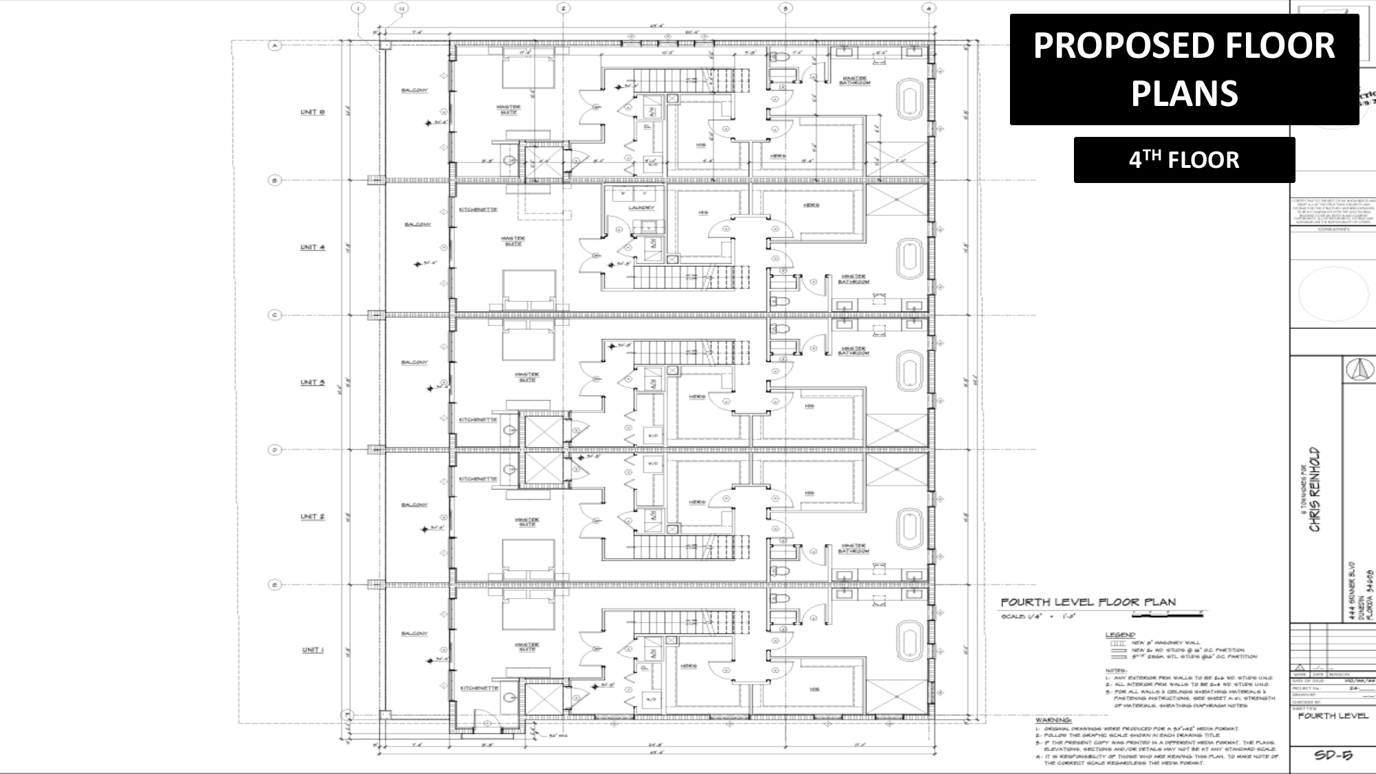
Master Suite

Fourth Floor Plan

🔍 Click to Expand

  • His & Hers Walk in Closet
  • Luxury master bathroom
  • Optional elevator or full laundry
  • Private outdoor terrace
  • Optional Coffee bar with mini fridge

Project Information

Address: 444 Skinner Boulevard
City: Dunedin, FL 34698
Units: 5 Townhomes
Stories: 3 levels above Garage
Size: 2,164 sq ft

Development Timeline

Status: Pre Development
Duration: 14 Months
Completion: 2027
Developer: LAND DEVS
Architecture: Modern Mediterranean